Перейти к содержимому
AlexTurchinStudio
Architecture, Conception, Design, Planning
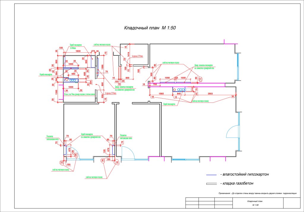
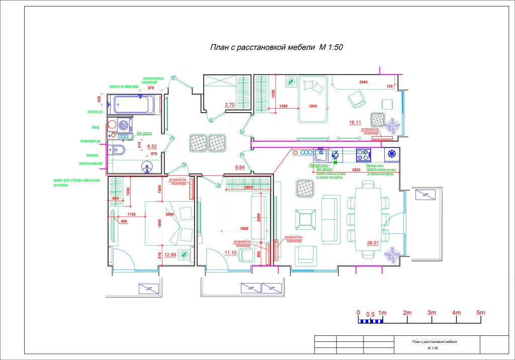
Apartment interior design (Donskogo str.)
Odesa, 2021
Загружаются Комментарии...
Опубликовать комментарий...
E-mail (обязательно)
Имя (обязательно)
Сайт
AlexTurchinStudio
Регистрация
Войти
Копировать ссылку
Сообщить об этом содержимом
Управление подписками